Opis nieruchomości
Zapoznaj się z ofertą i zaproponuj swoją cenę!!!Duża kamienica w centrum Rydułtów z możliwością rozbudowy - zapraszamy.
Oferujemy do sprzedaży okazałą, trzykondygnacyjną kamienicę w miejscowości Rydułtowy (10 km od Rybnika).
Obiekt o powierzchni użytkowej około 520 m2, posadowiony na działce o powierzchni 776 m2, przy ulicy Ofiar Terroru w niewielkiej odległości od Rynku.
Oferta doskonała dla inwestora!!!
Obiekt w gminnym rejestrze zabytków.
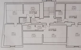
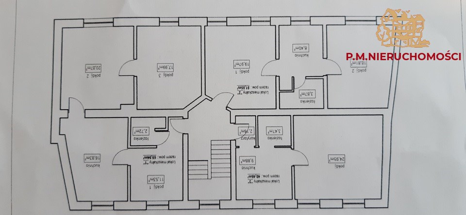
Rozkład pomieszczeń.
Parter mieści trzy lokale użytkowe:
- lokal o powierzchni 28,21 m2
- lokal o powierzchni 56,67 m2
- lokal o powierzchni 69,59 m2
Na piętrze pierwszym i drugim zostało wyodrębnionych sześć lokali mieszkalnych o powierzchniach od 38,22 m2 do 69,94 m2.
Wszystkie mieszkania przestronne i dobrze doświetlone.
W obecnej chwili w kamienicy wszystkie lokale, zarówno mieszkalne jak i usługowe opróżnione i wolne.
Ogrzewanie budynku ze wspólnej kotłowni – piec na ekogroszek.
Dodatkowo w przyziemiu został wyodrębniony samodzielny lokal użytkowy o powierzchni 98,17 m2 z przeznaczeniem na pub, kawiarnię lub restaurację.
Kamienica dobrze utrzymana i zadbana. Klatka schodowa po remoncie, lokale użytkowe w dobrym stanie.
Działka, na której posadowiona jest kamienica w MPZP oznaczona jest symbolem 9UM ( mieszkalno-usługowa) z możliwością rozbudowy istniejącego już na niej obiektu - co stanowi niewątpliwy atut oferty.
Nieruchomość położona w znakomitej lokalizacji, w pierwszej linii zabudowy przy głównej, najbardziej uczęszczanej ulicy miasta.
Z uwagi na transparentność obiektu, oferta idealna dla inwestora z pomysłem.
Oferta godna szczególnego polecenia, dostępna wyłącznie w naszym biurze - zapraszamy.
UWAGA! Cena wyjściowa do negocjacji: 799,000,00 PLN - zachęcamy zainteresowanych kontrahentów do kontaktu i składania swojej propozycji cenowej !!!
Kontakt w sprawie oferty: 508 070 593, 32-42-44-788
P.M.NIERUCHOMOŚCI – rok założenia 1999 (pośrednik odpowiedzialny zawodowo - nr licencji państwowej 2486). Dzięki wieloletniemu doświadczeniu, posiadanym uprawnieniom zawodowym oraz rzetelnej i stale doskonalonej wiedzy z zakresu rynku nieruchomości, zapewniamy Państwu, profesjonalną i bezpieczną obsługę transakcji, gwarantowaną posiadanym ubezpieczeniem z tytułu wykonywania czynności pośrednictwa.
Nota prawna
Opis oferty zawarty na stronie internetowej sporządzany jest na podstawie oględzin nieruchomości oraz informacji uzyskanych od właściciela, może podlegać aktualizacji i nie stanowi oferty określonej w art. 66 i następnych K.C.Szczegóły



